
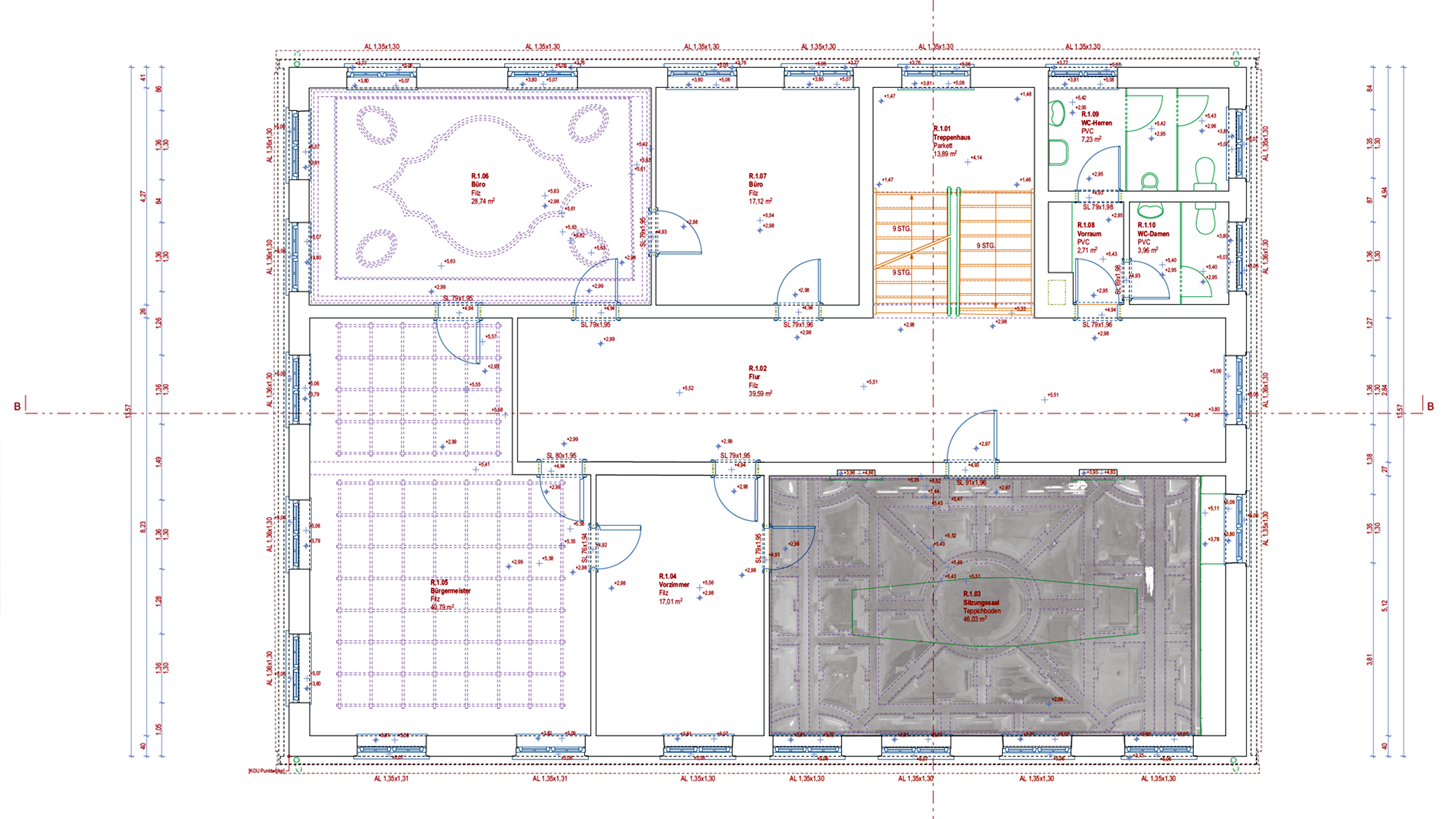
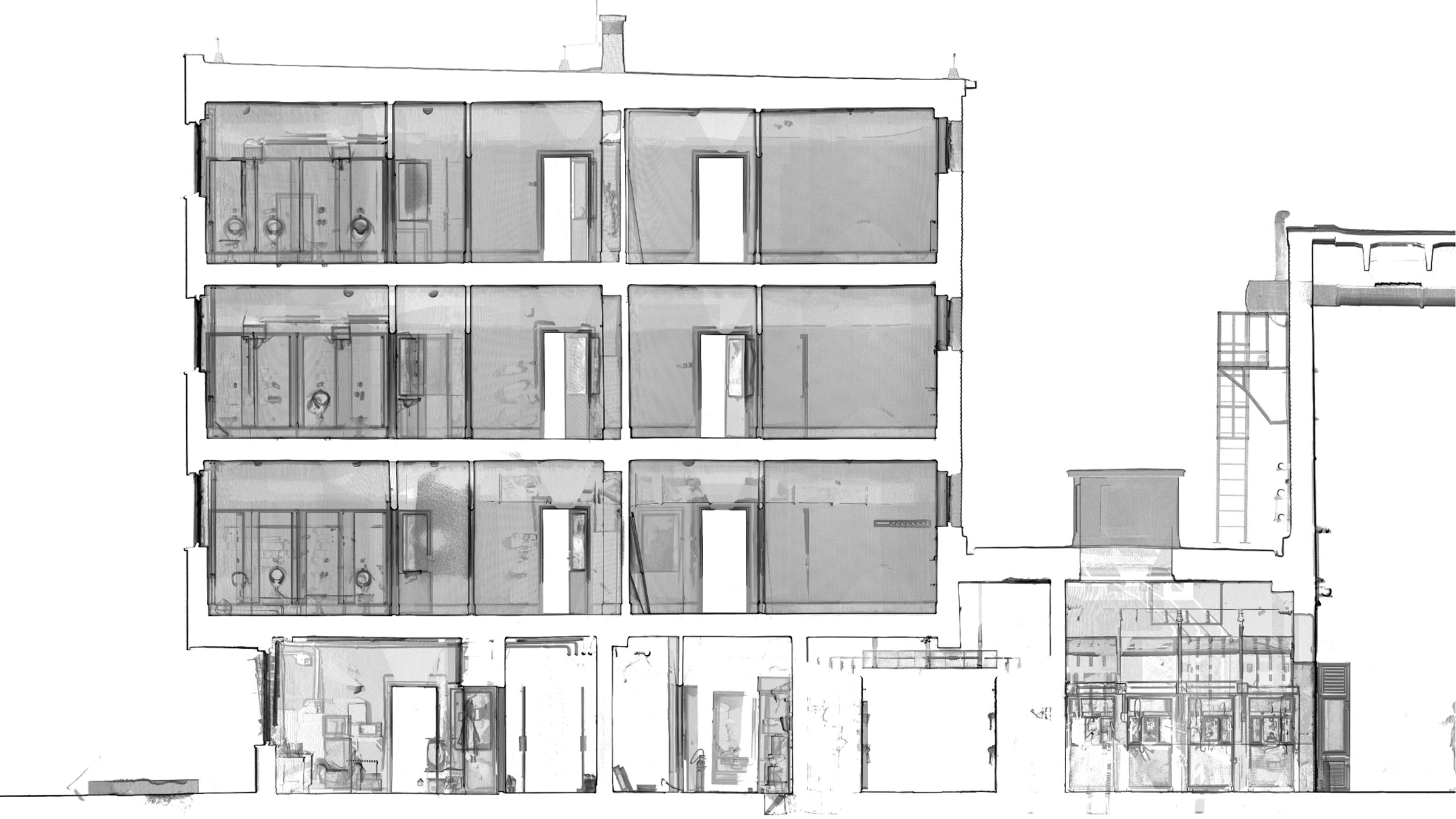
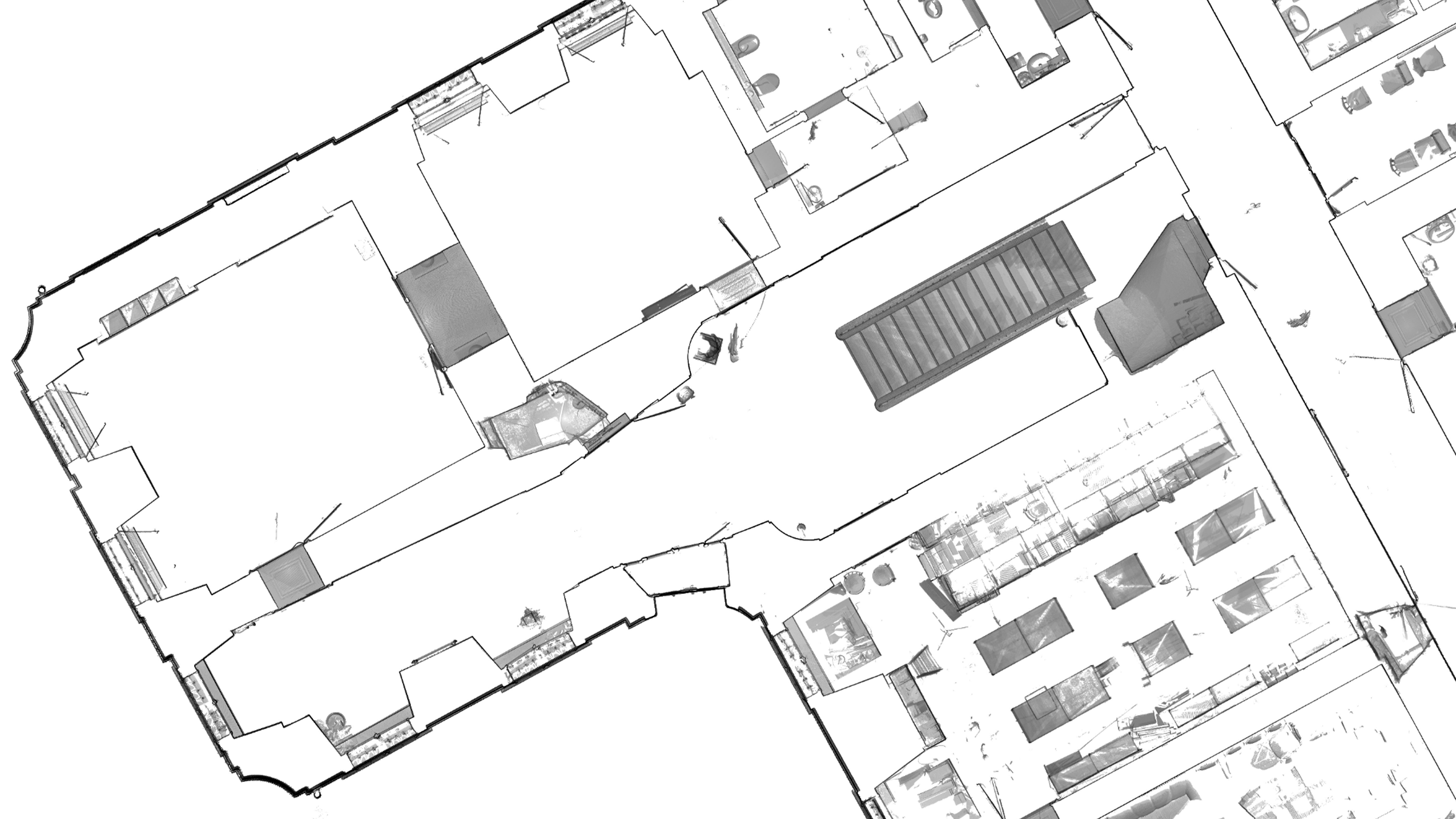
Gebäudevermessung mit Laserscanning für genaue und detaillierte Bestandspläne
- Vermessung mit Laserscanner und Tachymeter
- Erstellung und Bereinigung der Punktwolke
- Fotodokumentation, 360°-Panorama-Tour
- 2D-Punktwolkenausschnitte (Grundrisse, Schnitte)
- CAD-Import für die weitere Bearbeitung
- Erstellung von 2D/3D-Bestandsplänen
Erzählen Sie uns von Ihrem Projekt, damit wir gemeinsam die beste Variante finden:
Bálint Sikter
MSc. Architektur, Geschäftsführer
Adresse kopieren
Rufnummer kopieren
Rufnummer kopieren
Sikter Épületfelmérés Kft.
H-2000 Szentendre, Várkonyi Zoltán utca 35, Ungarn
USt-IdNr.: HU14764361
Steuernummer: 14764361-2-13
Unsere Projekte werden in Zusammenarbeit unabhängiger Partner durchgeführt. Ohne Anspruch auf Vollständigkeit:
Zoltán Kerényi, MSc. Arch, panoseta.hu
Mátyás Kutas, MSc. Arch, CEO, Intec Építészet Kft.
Mariann Vincze, MSc. Arch.
Copyright © 2025 Balint Sikter
Alle Rechte vorbehalten. Teile oder Inhalte dieser Webseite dürfen ohne die schriftliche Genehmigung von Balint Sikter nicht kopiert, verbreitet, verändert, noch anderswo für kommerzielle Zwecke verwendet werden.


















































